ОТГРУЗИЛИ ИЗДЕЛИЙ с 2008 года: тонн по чертежам тонн по сериям и ТУ тонн из артбетона Балка БЭ6-1 АIIIв-л Серия 1.462-10 в Махачкале
Популярные товары в каталоге
![]() У нас можно заказать изготовление по чертежам любых ЖБИ Сэкономьте время на поиск - сразу звоните нам!
Доставка по Махачкале и любым городам России. Цена от 10000 рублей за 1 м3 ( от 5 руб за кг). Производство ЖБИ
Консультация эксперта
Сергеев Александр Вячеславович - Эксперт с 25-летним стажем в сфере производства ЖБИ и изделий из бетона.
Смотрите также:Балка БЭ6-1 АIIIв Серия 1.462-10
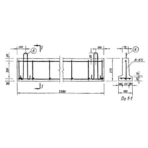
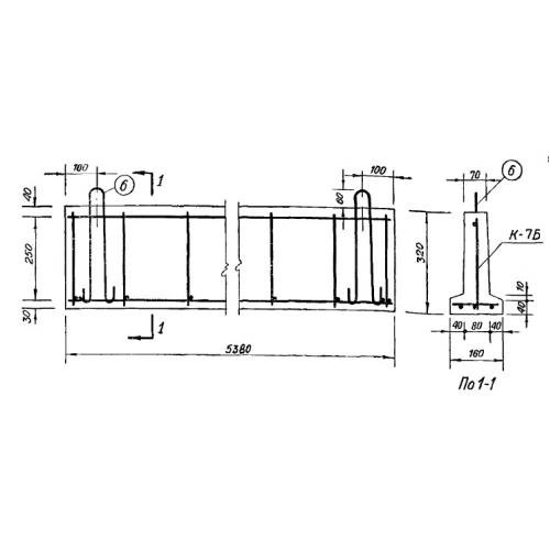
Балка БСП 9.2-9АV Серия 1.462.1-10/93 Балка БСП 9.2-9АIV Серия 1.462.1-10/93 Балка БЭ6-1 АIV Серия 1.462-10 Балка БЭ6-1 АIV-л Серия 1.462-10 Балка БЭ6-1 АV Серия 1.462-10 Балка БЭ6-1 АIIIв-л Серия 1.462-10 в Махачкале в наличии и под заказ по цене от 10 т.р. за м3. У нас можно купить ЖБИ «Балка БЭ6-1 АIIIв-л Серия 1.462-10 в Махачкале» с доставкой в любой город, а также любые ЖБИ изделия.
Нам доверяют:
|

+7 921 375-40-71





