8 (800) 444-79-35

Махачкала и Дагестан

+7 921 375-40-71

Для заявок через мессенджеры
Оставить заявку
ОТГРУЗИЛИ ИЗДЕЛИЙ
с 2008 года:
тонн
по чертежам
тонн
по сериям и ТУ
тонн
из артбетона
Получить прайс лист

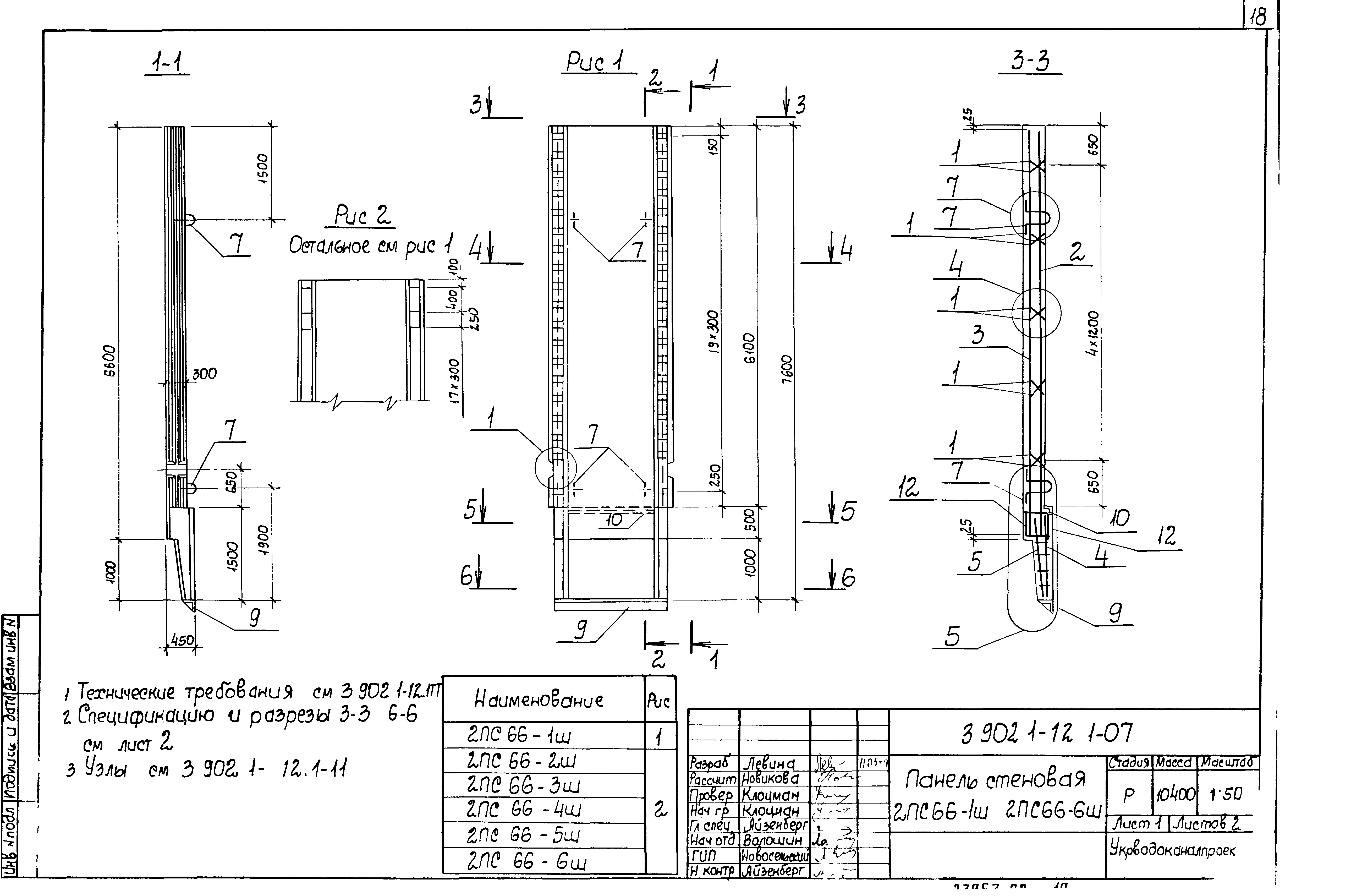
Панель стеновая 2ПС54-3ш Серия 3.902.1-12, вып.1 в Махачкале

Наименование
Панель стеновая
Маркировка
2ПС54-3ш
Нормативный документ

3.902.1-12, вып.1

Длина, мм
1970
Ширина, мм
450
Высота, мм
6400
Объем, м3
3,50
Масса,т
8,75
Прочность на сжатие
В25
Морозостойкость
F300
Водонепроницаемость
W4
Расход стали,кг
534,2

Варианты маркировки изделия:

1. 2ПС54-3ш
2. 2ПС54-3-ш
3. 2ПС-54-3ш
4. 2ПС.54.3ш
5. 2ПС/54/3ш
6. 2ПС-54.3ш
7. 2ПС54-3.ш
8. 2ПС54/3ш
9. 2ПС 54-3ш
10. 2ПС 54 3ш
11. 2ПС54-3 ш

 

Заказать Панель стеновая 2ПС54-3ш Серия 3.902.1-12, вып.1 Вы можете, отправив заявку по форме на сайте, написав на почту Этот e-mail адрес защищен от спам-ботов, для его просмотра у Вас должен быть включен Javascript или позвонив по единому номеру +7 (800) 444-79-35 (звонок по России бесплатный).

Возможно изготовление железобетонных изделий по чертежам заказчика

Поставка осуществляется с производственных площадок, расположенных в Санкт-Петербурге, Москве, Казани, Хабаровске, Ростове-на-Дону, Екатеринбурге, Симферополе.

вернуться враздел
Цена от 5 руб. / кг

Заказать продукцию

У нас можно заказать изготовление по чертежам любых ЖБИ Сэкономьте время на поиск - сразу звоните нам!

  • Махачкала 8 (800) 301-17-45


  • Оперативная связь через мессенджеры:

    +7 921 375-40-71

Доставка по Махачкале и любым городам России.

Цена от 10000 рублей за 1 м3 ( от 5 руб за кг).



Производство ЖБИ

Фото эксперта
Консультация эксперта
Сергеев Александр Вячеславович - Эксперт с 25-летним стажем в сфере производства ЖБИ и изделий из бетона.
Задать вопрос эксперту

Панель стеновая 2ПС54-3ш Серия 3.902.1-12, вып.1 в Махачкале в наличии и под заказ по цене от 10 т.р. за м3.

У нас можно купить ЖБИ «Панель стеновая 2ПС54-3ш Серия 3.902.1-12, вып.1 в Махачкале» с доставкой в любой город, а также любые ЖБИ изделия.

Нам доверяют:

+7(800)444-79-35

звонок по России бесплатный


+7 (812) 565-17-28

ООО "ЖБИ и Архитектура" © 2008-2026
Политика конфиденциальности и правила обработки персональных данных, Правила обработки cookies . Информация на сайте носит исключительно информационный характер и не является публичной офертой, определяемой положениями ст. 437 Гражданского кодекса РФКопирование материалов с данного сайта разрешено только с письменного разрешения администрации сайта.
Махачкала и Дагестан

info@prom-gbi.ru
mahachkala.prom-gbi.ru