ОТГРУЗИЛИ ИЗДЕЛИЙ
с 2008 года: тонн
по чертежам тонн
по сериям и ТУ тонн
из артбетона Железобетонные конструкции шлюзов-регуляторов (расход воды 10-150 куб/м/с) в МахачкалеМы производители! Ассортимент - более 50 тысяч номенклатурных позиций для любых cтроительных задач. У нас можно купить железобетонные конструкции шлюзов-регуляторов с доставкой в Махачкале, Дагестану и всей России Компания "ПромЖБИ" осуществляет производство и реализацию железобетонных элементов, использующихся при строительстве гидротехнических сооружений на мелиоративных систем, в частности, для шлюзов-регуляторов с пределами расхода воды от 10 до 150 куб. м/с. в соответствии Серией 3.820.1-29/91.
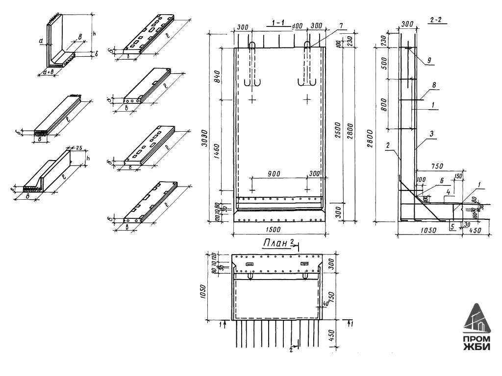
Принятые условные обозначения: Серия 3.820.1-29/91
Такие изделия рассчитаны на изменяемую или постоянную, так как обладают высокими показателями прочности. СБ 25 устанавливаются в обычных инженерно-геологических условиях, в неагрессивной среде, а также в климатических подрайонах 11б и 11в. Возможная здесь расчетная температура наружного воздуха от минус 20 до плюс 40 градусов по Цельсию. Производстве Железобетонных конструкций для шлюзов-регуляторов с расходом воды 10-150 куб/м/с применяется тяжелый бетон класса В15 марки М200, получающийся за счет смешивания различных однородных смесей с улучшенными добавками, заполнителями и водой. Прочность изделий достигается за счет совместной работы металла и бетона, для этого конструкцию армируют. Армирование представлено плоскими каркасами и арматурными сетками из арматурной стали класса А-I и А-III. Для удобства монтажа и доставки в тело изделий вставлены монтажные петли. Все арматурные изделия сваривают контактной точечной сваркой.
Имея широкий ассортимент железобетонной продукции высокого качества, компания «Промышленные Железобетонные Изделия» является лидером на рынке уже более 9 лет. Площадки для производства располагаются в крупных регионах, благодаря чему становится возможным доставить продукцию в любую точку, рационально подойдя к выбору транспорта. Мы серьезно относимся к качеству, поэтому все производство проходит строгий контроль. Помимо изготовления изделий по установленным нормативам, мы также производим продукцию по индивидуальным чертежам заказчика. Заказать Железобетонные конструкции шлюзов-регуляторов по выгодным ценам можно у нас. Заполните форму на сайте или отправьте запрос на Этот e-mail адрес защищен от спам-ботов, для его просмотра у Вас должен быть включен Javascript . Мы всегда готовы проконсультировать Вас: +7 (800) 444-79-35, по РФ звонок бесплатный.
Блоки гасителя БГ Серия 3.820.1-29/91
Блоки служебных мостов Серия 3.820.1-29/91
Стеновые блоки СБ Серия 3.820.1-29/91
Флютбетные блоки ФБ Серия 3.820.1-29/91
![]() У нас можно заказать изготовление по чертежам любых ЖБИ Сэкономьте время на поиск - сразу звоните нам!
Доставка по Махачкале и любым городам России. Цена от 10000 рублей за 1 м3 ( от 5 руб за кг). Производство ЖБИ
Консультация эксперта
Сергеев Александр Вячеславович - Эксперт с 25-летним стажем в сфере производства ЖБИ и изделий из бетона.
Смотрите также:
Железобетонные конструкции для сооружений земляных плотин
Железобетонные ограждения Серия 503-0-17
Железобетонные плиты для крепления каналов и откосов плотин
Изделия для укрепительных работ
жби
Железобетонные конструкции креплений откосов земляного полотна железных и автомобильных дорог
Линейный водоотвод
жб
Бетонные лотки BGF
Железобетонные конструкции крепления осушительных каналов
от завода
Металлические трубы водопропускные круглые гофрированные
Лотки ГЛ 34 и ГЛ 50
Блоки железобетонные лотка Л1 и Л2
из бетона
Блоки фундамента
Блоки экрана Ф3
(бетон)
Гофрированные трубы
Нам доверяют:
|

+7 921 375-40-71


