ОТГРУЗИЛИ ИЗДЕЛИЙ
с 2008 года: тонн
по чертежам тонн
по сериям и ТУ тонн
из артбетона Блоки трамплинов в МахачкалеМы производители! Ассортимент - более 50 тысяч номенклатурных позиций для любых cтроительных задач. У нас можно купить блоки трамплинов железобетонные с доставкой в Махачкале, Дагестану и всей России Высокопрочные блоки трамплинов используются при застройке автодорожных водоотводных конструкций.
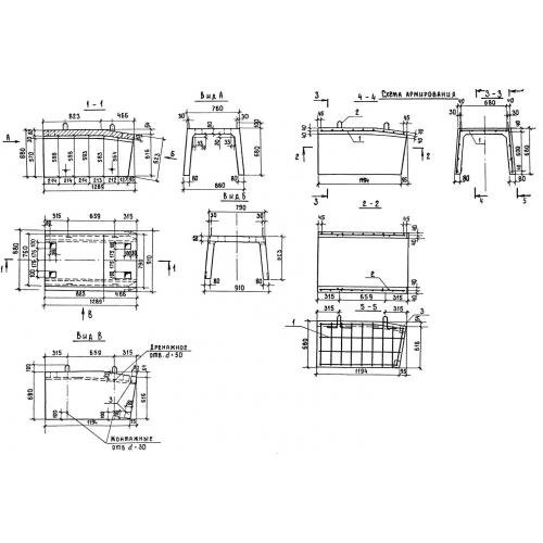
Принятые условные обозначения: Серия 3.503-1-85 вып. 1
Трамплины выкладывают в канал под необходимыми наклоном, за счет чего осуществляется отведение воды от проезжей части. Блоки трамплина унифицированные железобетонные изделия, имеющие трапециевидную форму. При разрезе структура похожа на букву «П». Одно из важных качеств - сужение от одной грани к другой, что облегчает установку и монтаж конструкции. Есть два вида конструкции: с гладким дном или под уклоном. Длина водотока составляет минимум 6 м. Основной материал для создания блока трамплина (3.503.1-85) тяжелый бетон (прочность на сжатие В25), ГОСТ 26633-85. Морозоустойчивость блока F200. Ввиду постоянного нахождения в контакте водой, водонепроницаемость установлена W6. Для более неблагоприятных условия, в частности температур ниже -20, приняты F300 и W8. Кроме того, для усиления стойкости во влажной среде, изделию добавлены специальные присадки.Применение изделия возможно в любых геологических условиях. Армирование деталей проводится сталью класса AI. Закладные детали из марки ВСт5сп2. Анкера изготавливаются из стали класса AII (ВСт5сп2). Для скрепления элементов применена контактная сварка. Металлические части всегда дополнительно покрыты битумным лаком, другое антикоррозийное покрытие может быть добавлено по желанию. Дно же обаятельно обрабатывается мастикой для получения гарантированной гидроизоляции.
Продукция «ПромЖБИ» обладает привлекательной ценой, свободной от наценок посредников. Компания более 10 лет производит и реализует железобетонные изделия под любые цели. Благодаря строгому контролю не только к производству, но и к доставке продукта становится возможным доставить продукцию в любую точку, рационально подойдя к выбору транспорта. Помимо изготовления изделий по установленным нормативам, мы также производим продукцию по индивидуальным чертежам заказчика. Заказать Блоки трамплинов по выгодным ценам можно у нас. Заполните форму на сайте или отправьте запрос на Этот e-mail адрес защищен от спам-ботов, для его просмотра у Вас должен быть включен Javascript . Мы всегда готовы проконсультировать Вас: +7 (800) 444-79-35, по РФ звонок бесплатный.
Блоки трамплинов железобетонные Серия 3.503.1-85 вып.1
![]() У нас можно заказать изготовление по чертежам любых ЖБИ Сэкономьте время на поиск - сразу звоните нам!
Доставка по Махачкале и любым городам России. Цена от 10000 рублей за 1 м3 ( от 5 руб за кг). Производство ЖБИ
Консультация эксперта
Сергеев Александр Вячеславович - Эксперт с 25-летним стажем в сфере производства ЖБИ и изделий из бетона.
Смотрите также:
Плиты перекрытия дренажных систем Серия 3.503-21
Полимеркомпозитные изделия
Крышка полимерного лотка
Подвесные полимерные лотки для путепроводов и эстакад
жби
Лотки водоотводные и элементы водоотвода стеклопластиковые (композитно-полимерные) для автодорог
Стеклопластиковые лотки для водоотвода
жб
Пластиковые лотки «Гемма»
Бетонный водоотводный лоток ЛВК ВМ SIR - 200, 300 и пр.
от завода
Бетонный водоотводный лоток ЛВК М STEP
Бетонный водоотводный лоток ЛВБ Optima
Бетонный водоотводный лоток Лоток ЛВК ВМ Plus
из бетона
Бетонный водоотводный лоток Лоток ЛВК ВМ Light
Бетонные лотки «Гемма Стандарт»
(бетон)
Бетонные лотки «Гемма Экстра»
Нам доверяют:
|

+7 921 375-40-71


