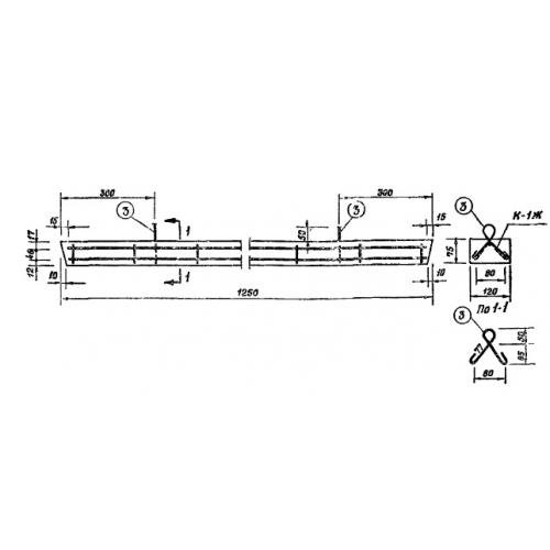
ОТГРУЗИЛИ ИЗДЕЛИЙ с 2008 года: тонн по чертежам тонн по сериям и ТУ тонн из артбетона Перемычка ШБ5 Серия ИИ 01-02
Популярные товары в каталоге
![]() У нас можно заказать изготовление по чертежам любых ЖБИ Сэкономьте время на поиск - сразу звоните нам!
Доставка по Махачкале и любым городам России. Цена от 10000 рублей за 1 м3 ( от 5 руб за кг). Производство ЖБИ
Консультация эксперта
Сергеев Александр Вячеславович - Эксперт с 25-летним стажем в сфере производства ЖБИ и изделий из бетона.
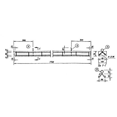
Смотрите также:Перемычка ШБ4 Серия ИИ 01-02
Перемычка ШБ3 Серия ИИ 01-02 Перемычка ШБ2 Серия ИИ 01-02 Пескоуловитель бетонный ПБ Optima 100 Пескоуловитель бетонный ПБ Optima 150 Пескоуловитель бетонный ПБ Optima 200 Перемычка ШБ5 Серия ИИ 01-02 в наличии и под заказ по цене от 10 т.р. за м3. У нас можно купить ЖБИ «Перемычка ШБ5 Серия ИИ 01-02» с доставкой в любой город, а также любые ЖБИ изделия.
Нам доверяют:
|

+7 921 375-40-71












