ОТГРУЗИЛИ ИЗДЕЛИЙ
с 2008 года: тонн
по чертежам тонн
по сериям и ТУ тонн
из артбетона Утяжелители УТ и грузы железобетонные для балластировки магистральных трубопроводов в МахачкалеМы производители! Ассортимент - более 50 тысяч номенклатурных позиций для любых cтроительных задач. У нас можно купить жби утяжелители и грузы для балластировки труб с доставкой в Махачкале, Дагестану и всей России Утяжелители бетонные для труб производятся строго в соответствии с ТУ 102-264-81, по проекту 994, представляют собой единую монолитную конструкция для балластировки трубопровода. Подобные конструкция используют для участков с переходами, или участки, требующие полной фиксации трубопровода с полным внешним покрытием. В этот проект вошли марки: 2УТК-325-12, 2УТК-377-12, 2УТК-426-12, 2УТК-530-12, 2УТК-720-24, 2УТК-820-24, 2УТК-1020-24-1, 2УТК-1020-24-2, 2УТК-1220-24-1, 2УТК-1220-24-2, 2УТК-1420-24-1, 2УТК-1420-24-2. Конструкция является монолитной железобетонной или составной, состоящей с двух частей (подложной и верхней части конструкции). Описание:«Пром-ЖБИ» производит и поставляет грузы железобетонные для балластировки магистральных трубопроводов (марки БП-1, утяжелитель УТ-1). Заказать утяжелители у нас вы можете, написав на почту:
Этот e-mail адрес защищен от спам-ботов, для его просмотра у Вас должен быть включен Javascript
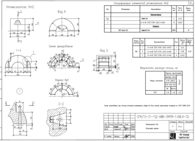
, наши менеджеры свяжутся с вами. Один из самых популярных методов балластировки трубопроводов, которые проложены в болотистой местности, считается применение железобетонных утяжелителей. Для этого используют утяжелители следующих видов: П-образные, кольцевые, поясные, сборно-блочные и заливаемые твердеющие растворы, в том числе системы типа «труба в трубе» с межтрубным цементно-песчаным заполнителем. Утяжелитель типа 1-УТ является конструкцией седловидного типа с боковой опорой, с клиновидной внутренней поверхностью. Поверхность образована двумя цилиндрическими взаимно пересекающимися поверхностями с радиусом, превышающим радиус трубопровода. Балластировку трубопровода выполняют в соответствии с требованиями СП 36.13330.2012 (актуализированная версия СНиП 2.05.06-85 «Магистральные трубопроводы»), ВСН 39-1.9-003-98 Конструкции и способы балластировки и закрепления подземных трубопроводов, СП 107-34-96 Балластировка, обеспечение устойчивости положения газопроводов на проектных отметках, СП 86.13330.2012 (актуализированная версия СНиП III-42-80 «Магистральные трубопроводы»). Мы доставим утяжелители и грузы по Санкт-Петербургу, Москве, в Краснодар, Екатеринбург, Тюмень и другие города России. Цена по запросу. Наличие по запросу. Технические характеристики продукции:
Утяжелитель УТ-2:
![]() У нас можно заказать изготовление по чертежам любых ЖБИ Сэкономьте время на поиск - сразу звоните нам!
Доставка по Махачкале и любым городам России. Цена от 10000 рублей за 1 м3 ( от 5 руб за кг). Производство ЖБИ
Консультация эксперта
Сергеев Александр Вячеславович - Эксперт с 25-летним стажем в сфере производства ЖБИ и изделий из бетона.
Смотрите также:
Утяжелители УБК. ТУ 102-421-86, "
Утяжелители железобетонные типа УБО - 1420, БУОТ и пр. Проект 999Б
Утяжелители железобетонные 2 УТК
Утяжелители ЖБИ жби
Вентблоки диафрагма
Вентблоки крышные жб
Внутренние стеновые панели
Утяжелители болотные НГ-796-61
от завода
Утяжелители
Полимеркомпозитные пластиковые утяжелители и кожуха
Полимеркомпозитные изделия
из бетона
Плиты резервуаров
Плита покрытия репера
(бетон)
Комплектующие для утяжелителей: техпластина ТМКЩ, уплотнительные коврики
Нам доверяют:
|

+7 921 375-40-71



