ОТГРУЗИЛИ ИЗДЕЛИЙ
с 2008 года: тонн
по чертежам тонн
по сериям и ТУ тонн
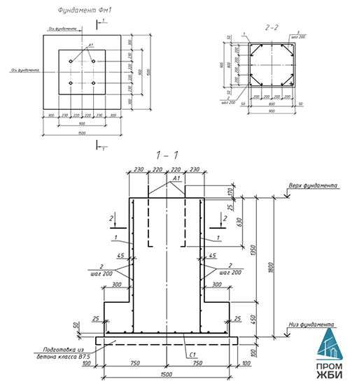
из артбетона Фундаменты кабельных эстакад в МахачкалеМы производители! Ассортимент - более 50 тысяч номенклатурных позиций для любых cтроительных задач. У нас можно купить фундаменты ФМ кабельных эстакад с доставкой в Махачкале, Дагестану и всей России Производство Компании «Пром ЖБИ» включает изготовление железобетонных фундаментов ФМ, используя которые, выполняется монтаж линий электропередач (до 500 кВ). Фундамент ФМ представляет из себя грибовидную конструкцию из бетона с металлическим каркасом.
Принятые условные обозначения: Серия 3.016.2-12
Фундаменты ФМ кабельных эстакад. Серия 3.016.2-12
Компания «Промышленные Железобетонные Изделия» по достоинству является лидером в области производства железобетонных изделий в течение более чем 9 лет. Ассортимент изготавливаемой железобетонной продукции разнообразен. Собственные сети производственных площадок располагаются в крупнейших регионах. Наше преимущество – доставка в любую точку и рациональный подбор транспорта (авто, ж/д, водный). Помимо изготовления продукции по установленным нормативам, мы также осуществляем производство ЖБИ по индивидуальным чертежам заказчика. Благодаря строго контролируемым процессам этапов производства и большому опыту, заказчик всегда получит достойное изделие по выгодной цене.
Процесс изготовления фундаментов кабельных эстакад сложно представить без использования лучших марок бетона, что обуславливает ее прочность. Благодаря такому свойству продукцию можно реализовывать на следующий день. Металлическая арматура для фундамента ФМ также характеризуется высоким качеством. Она проходит обработку предварительного напряжения, что также дополнительно повышает надежность всей конструкции. Закажите фундамент ФМ через специальную форму на сайте или отправьте запрос на Этот e-mail адрес защищен от спам-ботов, для его просмотра у Вас должен быть включен Javascript . Для консультации – звоните! +7 (800) 444-79-35 (бесплатно по РФ). В г. Симферополе (респ. Крым) на ул. Толстого, 75В в торгово-офисном центре «Гагаринский» открылось наше представительство. Для заказа любых ЖБИ-изделий и консультации Вы можете отправить письмо с заявкой на почту Этот e-mail адрес защищен от спам-ботов, для его просмотра у Вас должен быть включен Javascript или позвонить по телефону +7 (365) 277-71-28.
Фундаменты ФМ кабельных эстакад. Серия 3.016.2-12
Фундаменты ФМ кабельных эстакад. Серия 3.016.1-9
// Популярные товары в каталоге
![]() У нас можно заказать изготовление по чертежам любых ЖБИ Сэкономьте время на поиск - сразу звоните нам!
Доставка по Махачкале и любым городам России. Цена от 10000 рублей за 1 м3 ( от 5 руб за кг). Производство ЖБИ
Консультация эксперта
Сергеев Александр Вячеславович - Эксперт с 25-летним стажем в сфере производства ЖБИ и изделий из бетона.
Смотрите также:
Фундаменты под металлические опоры
Лотки кабельные и крышки к ним
Стойки линий электропередач
Плита опорная ПО2
жби
Подножники
Сборные фундаменты для опор ЛЭП
жб
Свайный фундамент опор ЛЭП
Анкерные плиты и ригели опор ЛЭП
от завода
Без категории
Энергетическое строительство
Звено оголовка
из бетона
Звенья железобетонные круглых водопропускных труб
Звенья оголовка и труб ЗП прямоугольные
(бетон)
Водоотводные системы ЖБИ АБЛ 900 для зон с высокими и сверхвысокими нагрузками
Нам доверяют:
|

+7 921 375-40-71












