8 (800) 444-79-35

Махачкала и Дагестан

+7 921 375-40-71

Для заявок через мессенджеры
Оставить заявку
ОТГРУЗИЛИ ИЗДЕЛИЙ
с 2008 года:
тонн
по чертежам
тонн
по сериям и ТУ
тонн
из артбетона
Получить прайс лист

Фундаменты под дорожные знаки и светофоры в Махачкале

Мы производители! Ассортимент - более 50 тысяч номенклатурных позиций для любых cтроительных задач. У нас можно купить фундаменты под дорожные знаки и светофоры с доставкой в Махачкале, Дагестану и всей России

Ни одна дорога не обходится без знаков, светофоров, различных рекламных щитов и столбов. Все знаки и дорожное оборудование крепится либо на воздушные линии, либо на специализированные железобетонные столбы. Для установки опоры необходим фундамент для балансировки и устойчивости.

Наш завод производит в полном объеме различные фундаменты под дорожные знаки и светофоры. Помимо основного назначения фундаменты под дорожные знаки можно использовать разграничением или преградой на автостоянке. Зачастую подобные опоры используют и для запрещения стоянки во дворе, или перед магазином. Заказать фундамент у нас вы можете, написав на почту:  Этот e-mail адрес защищен от спам-ботов, для его просмотра у Вас должен быть включен Javascript , наши менеджеры свяжутся с вами.

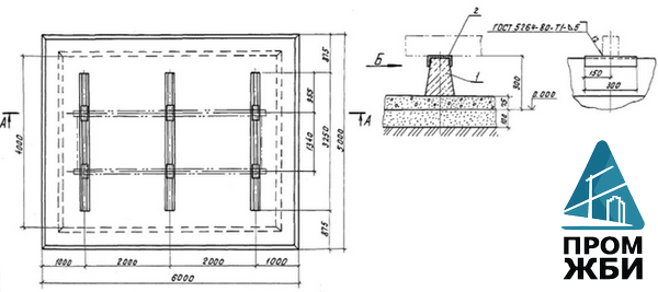
Принятые условные обозначения: Серия 3.503.9-80, ТУ 5810-001-23078401-04
H - высота
А - длина
B - ширина

От целей установки и расположения, фундаменты под дорожные знаки и светофоры производят из различных марок тяжелого бетона и добавляют арматуру и металлические трубы. Мы изготавливаем фундаменты в соответствии с серией 3.503.9-80.

ограничители движения и фундаменты для дорожных знаков
Наименование
Номенклатура
Габариты (мм.)
Масса (т.)
Фундамент для дорожного знака Ф-1 1100х700х700 0,85
Фундамент для дорожного знака Ф-2 1750х700х700 1,06
Фундамент для дорожного знака Ф-3 2750х700х700 1,31
Фундамент для дорожного знака ФМ1 3500х2100х1800 9,075
Фундамент для дорожного знака ФМ2 3300х2100х1650 9,2
Фундамент для дорожного знака ФМ3 3000х2000х1500 8,225
Фундамент для дорожного знака ФМ4 2800х1900х1500 7,45
Фундамент для дорожного знака ФМ5 2500х1800х1500 6,525
Фундамент для дорожного знака ФМ6 2300х1600х1350 5,175
Фундамент для дорожного знака ФМ7 2000х1500х1200 4,1
Железобетонная стойка СКЖ 1-20 2000х100х100 0,0497
Железобетонная стойка СКЖ 1-25 2500х100х100 0,062
Железобетонная стойка СКЖ 1-30 3000х100х100 0,0743
Железобетонная стойка СКЖ 1-35 3500х100х100 0,0865
Железобетонная стойка СКЖ 1-40 4000х100х100 0,0988
Железобетонная стойка СКЖ 2-30 3000х100х100 0,0758
Железобетонная стойка СКЖ 2-35 3500х100х100 0,0883
Железобетонная стойка СКЖ 2-40 4000х100х100 0,18
Железобетонная стойка СКЖ 2-45 4500х100х100 0,1134
Железобетонная стойка СКЖ 3-30 3000х100х100 0,0805
Железобетонная стойка СКЖ 3-35 3500х100х100 0,0938
Железобетонная стойка СКЖ 3-40 4000х100х100 0,1071
Железобетонная стойка СКЖ 3-45 4500х100х100 0,1204
Железобетонная стойка СКЖ 4-35 3500х140х100 0,1272
Железобетонная стойка СКЖ 4-40 4000х140х100 0,1453
Железобетонная стойка СКЖ 4-45 4500х140х100 0,1634
Железобетонная стойка СКЖ 4-55 5500х140х100 0,1995
Железобетонная стойка СКЖ 4-65 6500х140х100 0,2357
Железобетонная стойка СКЖ 5-45 4500х180х100 0,2073
Железобетонная стойка СКЖ 5-55 5500х180х100 0,2531
Железобетонная стойка СКЖ 5-65 6500х180х100 0,2989
Железобетонная стойка СКЖ 6-55 5500х220х100 0,3134
Железобетонная стойка СКЖ 6-65 6500х220х100 0,3692
Фундаментная опора для забора 400х400х200 0,07
Фундаментная опора для столбов 600х600х400 0,34
Фундаментная опора для светофоров 800х800х350 0,535
Фундаментная опора для светофоров со складной лестницей Тип I чертеж 13237-00-00 520х600х1000 0,731
Фундаментная опора для светофоров с приставной лестницей Тип II чертеж 13238-00-00 520х700х1100 0,977
Фундаментная опора для карликовых светофоров Тип I чертеж У-11786-00-00 310х310х1300 0,275
Фундаментная опора для переездного светофора Тип II чертеж 12843-00-00 310х310х1300 0,278
Фундаментная опора для карликового светофора с двумя головками Тип II чертеж 12810-00-00 620х310х1300 0,55
Фундаментная опора усиленная для светофора с площадкой обслуживания Чертеж 15379-00-00-01 770х770х1500 1,57
Фундаментная опора для рекламных щитов РФ 2200х1500х700 5,6
Фундаментная опора с квадратной закладной 500х300х300 0,1
Фундаментная опора с круглой закладной 500х300х300 0,1
Фундаментная опора под светофор 1000х1000х600 1,4
Фундаментная опора под флагшток 800х800х600 0,9
Фундамент под железобетонный забор 1200х400х250 0,215
Дорожный разделительный блок 2000х870х540 1,2
Ограничитель движения сигнальный 1500х350х430 0,285
Полусфера бетонна ПСФ-1  серая ПСФ-1 410х200 0,04
Полусфера бетонная ПСФ-2 серая ПСФ-2 500х250 0,065
Основание под трансформаторные и релейные ящики 13720-00-00 300х300х400 0,024
Основание под трансформаторные и релейные ящики 788-00-000 40х300х400 0,035

Фундаменты для дорожных знаков Ф2. ТУ 5810-001-23078401-04

Наименование
Номенклатура
Габариты (мм.)
Масса (т.)
Фундамент под стойку дорожных знаков Ф2-1 2200х1500х700 5,6
Фундамент под стойку дорожных знаков Ф2-2 800х800х350 0,353
Фундамент под стойку дорожных знаков Ф2-3 600х600х400 0,34
Фундамент под стойку дорожных знаков Ф2-4 400х400х200 0,07
Фундамент под стойку дорожных знаков Ф2-5 500х500х300 0,14
Фундамент под стойку дорожных знаков Ф2-6 600х600х300 0,16
Фундамент под стойку дорожных знаков Ф2-7 700х700х300 0,22
Фундамент под флагшток или светофор (с фланцем) Ф-2 600 800х800х600 0,9
Фундамент под флагшток или светофор (с фланцем) Ф-2 1000 1000х1000х600 1,4

Компания «Промышленные Железобетонные Изделия», имея огромный опыт в производстве и продаже железобетонных изделий, гарантирует максимально быстро и корректно оказать все предоставляемые работы и услуги. Цена по запросу. Наличие по запросу.

У нас можно заказать изготовление по чертежам любых ЖБИ Сэкономьте время на поиск - сразу звоните нам!

  • Махачкала 8 (800) 301-17-45


  • Оперативная связь через мессенджеры:

    +7 921 375-40-71

Доставка по Махачкале и любым городам России.

Цена от 10000 рублей за 1 м3 ( от 5 руб за кг).



Производство ЖБИ

Фото эксперта
Консультация эксперта
Сергеев Александр Вячеславович - Эксперт с 25-летним стажем в сфере производства ЖБИ и изделий из бетона.
Задать вопрос эксперту
Нам доверяют:

Заказать продукцию

+7(800)444-79-35

звонок по России бесплатный


+7 (812) 565-17-28

ООО "ЖБИ и Архитектура" © 2008-2026
Политика конфиденциальности и правила обработки персональных данных, Правила обработки cookies . Информация на сайте носит исключительно информационный характер и не является публичной офертой, определяемой положениями ст. 437 Гражданского кодекса РФКопирование материалов с данного сайта разрешено только с письменного разрешения администрации сайта.
Махачкала и Дагестан

info@prom-gbi.ru
mahachkala.prom-gbi.ru