ОТГРУЗИЛИ ИЗДЕЛИЙ
с 2008 года: тонн
по чертежам тонн
по сериям и ТУ тонн
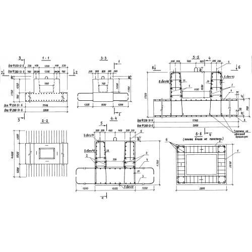
из артбетона Фундаментные блоки для опор автодорожных мостов в МахачкалеМы производители! Ассортимент - более 50 тысяч номенклатурных позиций для любых cтроительных задач. У нас можно купить блоки фундаментов для опор автодорожных мостов с доставкой в Махачкале, Дагестану и всей России Железобетонные блоки фундаментов по Серии 3.503.1-76 Выпуск 1, Серии 3.503.1-90 Выпуск 1, Серии 3.503.1-57 Выпуск 1, Серии 3.501-61, Серии 3.503.1-53 Выпуск 1, Серии 3.503-23 Выпуск 6 предназначены для строительства мостов и путепроводов повышенной нагрузки. Изделие имеет стаканную форму и используется при возведении промежуточных опор под пролетные строения. Для производства блоков фундаментов Серии 3.503.1-76 Выпуск 1, Серии 3.503.1-90 Выпуск 1, Серии 3.503.1-57 Выпуск 1, Серии 3.501-61, Серии 3.503.1-53 Выпуск 1, Серии 3.503-23 Выпуск 6 используется тяжелый бетон марки B25. Армирование осуществляется при помощи стальных стержней, прошедших антикоррозийную обработку. Класс стали выбирается в зависимости от района эксплуатации. В конструкции изделия предусмотрены монтажные петли. Эксплуатация блоков фундаментов Серии 3.503.1-76 Выпуск 1, Серии 3.503.1-90 Выпуск 1, Серии 3.503.1-57 Выпуск 1, Серии 3.501-61, Серии 3.503.1-53 Выпуск 1, Серии 3.503-23 Выпуск 6 рассчитана под температуру местности от минус 40 градусов, с сейсмичностью до 6 баллов.
Компания «Промышленные железобетонные изделия» имеет большой опыт в производстве и реализации железобетонных изделий самого широкого спектра. За более, чем 10-летний опыт мы зарекомендовали себя как надежный поставщик ЖБИ любой сложности. В нашем распоряжении имеется сеть производственных площадок в крупных регионах страны. Благодаря отлаженной логистике, мы поставляем ЖБИ в любую точку страны, автодорожным, жд или по воде. Наличие собственных производств, строгий контроль выполнения заказа на всех этапах позволяют предлагать качественную ЖБИ-продукцию на самых выгодных для заказчика условиях, минуя наценки посредников. Помимо выполнения работ по нормативным документам, мы также изготавливаем ЖБИ по индивидуальным чертежам заказчика. Заказать блоки фундаментов по Серии 3.503.1-76 Выпуск 1, Серии 3.503.1-90 Выпуск 1, Серии 3.503.1-57 Выпуск 1, Серии 3.501-61, Серии 3.503.1-53 Выпуск 1, Серии 3.503-23 Выпуск 6 Вы можете, заполнив форму заявки на нашем сайте, отправив письмо на почту Этот e-mail адрес защищен от спам-ботов, для его просмотра у Вас должен быть включен Javascript или позвонив нам по единому номеру телефона +7 (800) 444-79-35 (звонок по России бесплатный). Фундаментные блоки для опор автодорожных мостов под БелАЗ-540. Серия 3.503.1-76 выпуск 1
Блоки фундаментов Серия 3.503.1-90 Выпуск 1
Блоки фундаментов для опор пролетных строений Серия 3.503-23 Выпуск 6
Блоки фундамента, фундаментные плиты Серия 3.501-61
Блоки фундаментов Серия 3.503.1-53 выпуск 1
Фундаментные блоки устоев промежуточных опор под пролетные строения автодорожных мостов Серия 3.503.1-57 Выпуск 1
Популярные товары в каталоге
![]() У нас можно заказать изготовление по чертежам любых ЖБИ Сэкономьте время на поиск - сразу звоните нам!
Доставка по Махачкале и любым городам России. Цена от 10000 рублей за 1 м3 ( от 5 руб за кг).
Консультация эксперта
Сергеев Александр Вячеславович - Эксперт с 25-летним стажем в сфере производства ЖБИ и изделий из бетона.
Смотрите также:
Карнизный блок
Колонны фахверковые
Конструкции для устройства железобетонных арочных мостов. Альбом № 3772
Контурные блоки
жби
Лежни железобетонные
Лотки гидросмывного канала
жб
Металлические фермы
Фундамент для косоуров
от завода
Блок ростверка
Блок подколонника ПК
Блок насадки БН
из бетона
Блоки ригелей и шкафных стенок
Блоки подферменников
(бетон)
Блоки ледорезов
Нам доверяют:
|

+7 921 375-40-71











