ОТГРУЗИЛИ ИЗДЕЛИЙ
с 2008 года: тонн
по чертежам тонн
по сериям и ТУ тонн
из артбетона Карнизный блок в МахачкалеМы производители! Ассортимент - более 50 тысяч номенклатурных позиций для любых cтроительных задач. У нас можно купить любую серийную и нестандартную ЖБИ продукцию (с фибро-, стекло-, керамзитом, сульфатостойким цементом и другими добавками) с доставкой в Махачкале, Дагестану и всей России Карнизные блоки широко применяются в мостостроении. Объединенный с пролетным строением, карнизный блок выполняет функцию несъемной опалубки. Элемент закрепляется на общей конструкции моста путем сварки закладных деталей. Он может помочь в создании единообразного архитектурного облика всего сооружения. В дальнейшем к карнизным блокам могут крепиться перильные ограждения. ПромЖБИ производит и реализует карнизные блоки для мостов. Все изделия мы изготавливаем на собственном заводе – это значит, что цены на нашу продукцию представляются клиентам без наценок посредников!
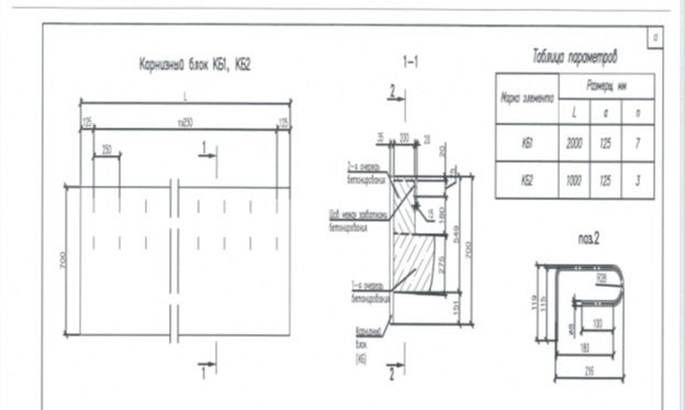
Принятые условные обозначения: Серия 3.503.1-81, выпуск 2-1
Все работы по изготовлению карнизных блоков мы осуществляем согласно утвержденной Серии 3.503-81. Кроме того, мы работаем по индивидуальным чертежам. Для заказа работ, Вам нужно всего лишь задать желаемую форму и фактуру. Оставьте заявку на сайте или отправьте на Этот e-mail адрес защищен от спам-ботов, для его просмотра у Вас должен быть включен Javascript . Наши менеджеры свяжутся с вами и позаботятся о точном выполнении Вашего проекта!
Характеристики
Карнизные блоки изготавливаются из морозостойкого (F200) и водонепроницаемого (W6) бетона класса В35. Данная марка бетона также не подвержена трещинам и долговечна. Железобетонные карнизные блоки армируются двумя вариантами стали: А2 и А3. Каркас составляется сварным или вязаным способом. Предварительно сталь проходит антикоррозийную обработку.
Так же ПРОМЖБИ производит блоки карнизные блоки следующих типов: кб1, кб2, кб3, кб4, кб5, кб6, кб7, кб8, кб9, кб10, кб11, кб12, кб13 пролетов 1-15, 1-15л. Карнизные блоки из стеклофибробетонаКомпания «ПромЖБИ» также производит карнизные блоки, изготовленные из стеклофибробетона. Этот вид бетона является негорючим, отличается устойчивостью к коррозии, а также показывает при сжатии и изгибе высокую степень прочности.
Карнизные блоки из стеклофибробетона отличаются тонкостью. Использование их в качестве облицовочного материала в мостовых конструкциях позволяет существенно увеличить площадь полезного внутреннего пространства и придать сооружению единообразный привлекательный внешний вид. Архитектурно-декоративные качества строения возрастают, при этом избегается дополнительная силовая нагрузка.
Популярные товары в каталоге
![]() У нас можно заказать изготовление по чертежам любых ЖБИ Сэкономьте время на поиск - сразу звоните нам!
Доставка по Махачкале и любым городам России. Цена от 10000 рублей за 1 м3 ( от 5 руб за кг).
Консультация эксперта
Сергеев Александр Вячеславович - Эксперт с 25-летним стажем в сфере производства ЖБИ и изделий из бетона.
Смотрите также:
Колонны фахверковые
Конструкции для устройства железобетонных арочных мостов. Альбом № 3772
Контурные блоки
Лежни железобетонные
жби
Лотки гидросмывного канала
Металлические фермы
жб
Металлические ригели
Фундаментные блоки для опор автодорожных мостов
от завода
Фундамент для косоуров
Блок ростверка
Блок подколонника ПК
из бетона
Блок насадки БН
Блоки ригелей и шкафных стенок
(бетон)
Блоки подферменников
Нам доверяют:
|

+7 921 375-40-71












